ARAMA

Hasanoğlan Fatih Mahallesi Hasanoğlan Stadı ve Çev...

Geri

Hasanoğlan Fatih Mahallesi Hasanoğlan Stadı ve Çevresi 96207 Sayılı Parselasyon Planı Hk

19 Ocak 2026

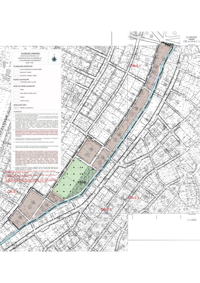
Hasanoğlan-Fatih Mahallesi sınırları içerisinde bulunan “Hasanoğlan Stadı ve çevresine ilişkin
1/1000 ölçekli Uygulama İmar Planı değişikliği Belediyemiz Meclisinin 01.11.2024 tarihli ve 223 sayılı
kararı ile uygun görülmüş, Ankara Büyükşehir Belediye Meclisinin 11.03.2025 tarihli ve 374 sayılı kararı
ile onaylanmıştır.
Plan değişikliği kapsamında 3194 sayılı İmar Kanunu’nun 18’inci maddesince hazırlanan 96207
sayılı parselasyon planı 3194 sayılı İmar Kanunu’nun 19'uncu maddesince Belediyemiz Encümeni'nin
04.12.2025 tarihli ve 333 sayılı kararı ile uygun görülerek Ankara Büyükşehir Belediye Encümeni'nin
08.01.2026 tarihli ve 16 sayılı kararı ile onaylanmıştır.

DİĞER İLANLAR